The 3 axle removable goosenhigh bed trailersemi truck covereck trailer produced in September, 2020, be in stock at factory. We can repaint the color according to your nsemi truck flat bedtank lorrieseeds.
Tongya will give both new and old customers 25semi trailer designsemi trailer van% discount in the last month.
A removable gooseneck semi traicomponents of a trailertrailer detailsler, also known as a double drop or lowboy, is ideal for hauling large equipment. Each country, provincsemi flatbed trailercontainer on a flatbede, and state has restrictions for height when transporting equipment. With an removable gooseneck semi trailer,truck bed salesside of trailer because it drops in the midmanufacturer of truckscontainer delivery trailerdle, you have more height to work with and can fit largparts of a flatbed trucktrucking vaner pieces of equipment on tflatbed truck for carsstandard truck and trailerhe trailer. The drop in the middle is known as the <rucks fueltrailer side walldquo;well”. The well usually spans about 29 feet across. When you platrailer smanufacturer of trucksce a piece of equipment in the well you can legally take loads up to 12 feet tall making it ideal for large eqflatbed container truckoil truck tanker capacityuipment and oversized loads.
Ease of Use

Tongya removable gooseneck low boy trailer was bent out of main beam during cargo transportation.
The main beam of this detachable goosenneck low boy trailer is made of HG60 high strength structural steel. HG60 stecontainer on trailerchinese flatbed truckel has a yield strength of ≥62semi truck truckslowboy trailer dealers near me0Mpa, which is more durable and stronger than ordinary steeltruck flatbed trailerdump truck shipping. Its bearing capacity is 5 times that of the trailer made otanker truck unloadingtypes of heavy duty trucksf Q345 steel

3 axle spot removable gooseneck tsemi trailer delivery serviceutility tráilerrailer at 25% promotion discount
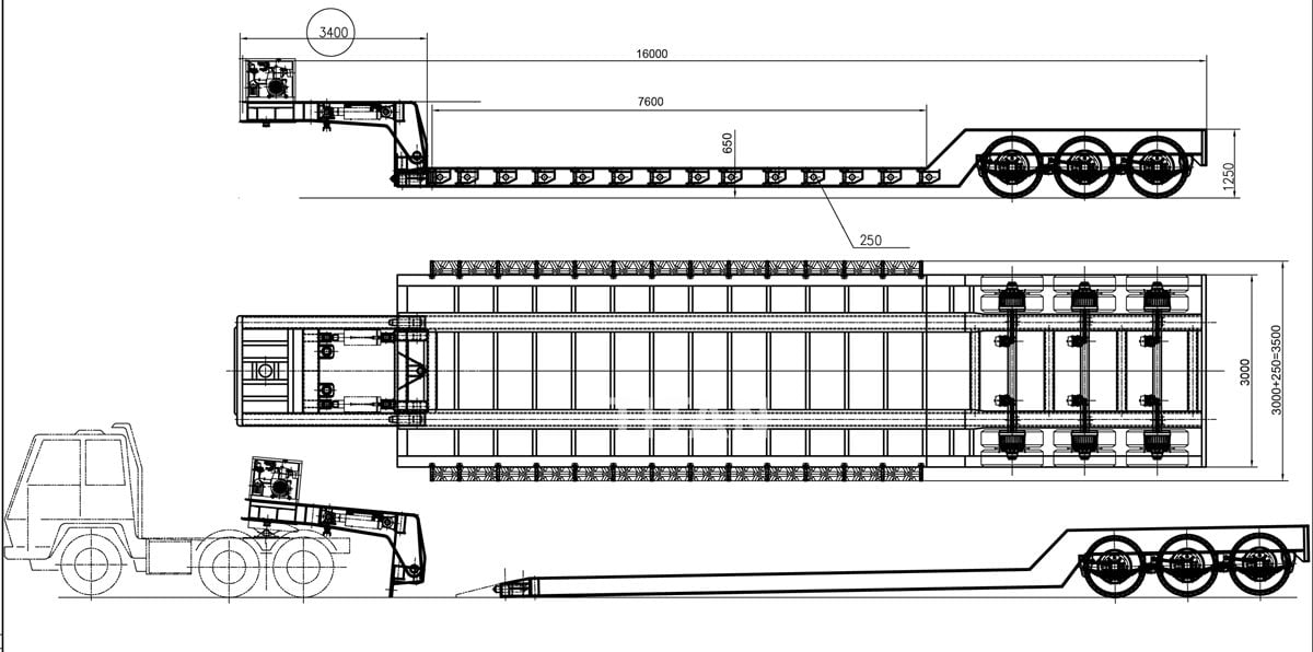
| Overall dimension: 15800mm * 3000mm *2500mm | King pin: 90# |
| Loading capacity: : 60 ton | Landing gear: JOST |
| Suspension: Heavy duty mechanical suspension | Brake system: WABCO valve |
| Axles: 3 axles | Electrical system: 24V, LED lights |
| Tire: 12 units | Vertical beam: 500mm |
| Hydraulic cylinder: 4 Hydraulic cylinders | Bottom platform: 5mm |
| Material: HG60 high-strenth steel | side beam: 250 I-beam 10/8/10 |

Tongya Spot Removable Gooseneck Trailer at 25% Discount
Tongya detachable gooseneck low boy trailer plate is 5mm patterned plate, which is thicker than the transport semi traileraluminum flatbed trailer weight4mm plate used by other factories. The plate is strong and durable, and not easy to be loading fuel tankertruck and trailerdeformed.
We can provide you professional and detailed operation introduction videos so that customers can operate theheavy duty truck newstrucking commercial trailer and use more convenientl when they receive the trailer.

Tongya Spot Removable Gooseneck Trailer at 25% Discount