My Cart (0)
Since 1982
Ten Years of Reliability Your Trusted Partner
You are here : Home / Branding

Branding

Hammar Side Lifter for Sale Price | How the 37 Ton Side Lifter is Transported?

Tongya VEHICLE | 2021-05-13

 

1. How to Operate the Side Lifter? - Side Lifter Design advantage

2. Common faults and maintenance about the side lifters

3. Side loader transport services to deliver your shipptrucks semi trucksbuy semi truck trailering containers

 

How to Operate the Side Lifter? -support trailerbig rig trailer Side Lifter Design advantage

1. The design of the lift cylinder and the truck trailer salestrailer corporationknuckle legs in a straight line provides multiple advantages for the Tongya side lifter. When the inside truck trailerflatbed heavy duty trailerknuckle legs are in the working position, the momentum arm from the lift cylinder model semi truck and trailertrailer parts chinais doubled; this keeps the cylinder diameter small. By integrating the crane and outriggers online, the sidshow tractor trailertruck trailer manufacturerse loader is only slightly longer than the container flatbedtank truck servicestandard container trailer. When the crane ou2008 dump trailertypes of trailers for pickup truckstrigger is folded to the transpflatbed tractor trailerstrailers by weightort position, it takes up less space than the cross-sectiooil tanker semi trailerflatbed truck loadingn of the container.

Due to this configuration, the momea & a tank truck coa and a tank truckntum from the lifting cylinder is directly transmitted from the knuckle leg down to the ground. Therefore, the stress in trailer with tankcommercial truck and trailerthe crane base and chassis is minimized, and there is no twist between the main boom and the outrigger.

2. Due to design reasons, the Tongya side lifter has a very low tare weight.

The integrated security of the Tongya 20/40 ft side lifter makes handling easy and worry-free. The unique geometry in the design prevents accidental plainternational truck fuel tanklowering trailercement of the container in an unstable position. This means you don’t have to deal with additypes of truck trailerservice truck trailertional cantilever brackets at the rear of the side loader,semi trailer maintenancelowboy trailer dealers near me so you can reduce the number of mainlow bed trailer capacitytractor trailer companytenance parts. cylinder integrated into the arm gear.

3. The welding structure of the 40 ton side lifter is made of ultra-high-strength steel, which can ensure the hifuel transport trailerhgv trailer manufacturersghest possible strength while still reducing the load to increassemi truck trailer sales near mecommercial truck supplies near mee the load. Each side lifter includes the main boom, which has a 2-step telescopic boom and is operated by a double-actindump trailer iconlow side trailerg telescopic 

4. All cylinders on the Tongya side lifter are equipptanker truck typesheavy duty truck parts cataloged with sturdy low-friction bearings and have special lubrication chambers to provide excellent lubricatrailer exporttrailer tire maintenancetion, low maintenance cost and long life. All cylinders on the Tongya side lifter are double-acting,truck professionalstruck trailer service near me with honing / roller polishing cylinders and hard chrome-plated and polished cylinder rocapacity of a fuel tankerstatewide trailerds.

5. The Tongya side lifter is equipped with a momentum limiting valve. The directional contruck on truckweight limit for flatbed truckstrol valve for smooth operation is provided by a heavy-duty, high-pressure, fixed displacement piston ptruck & trailer solutionsdiscount dump trailersump powered by the power output shafdump truck semi trailerchina truckt.

Hammar Side Lifter for Sale Price | How the 37 Ton Side Lifter is Transported?Hammar Side Lifter for Sale Price | How the 37 Ton Side Lifter is Transported?

Common faults and maintenance about the side lifters

For many people, It is very important for you to maintain the Tongya 37 ton side lifter. It can better extend the service life and maintain good working accuracy and performance. truck and trailer shops near mealuminum flatbed trailerToday very glad to share with you many ways to check and maintain it.

1.Hydraulic system pressure is too high or too low

The oil pump is damaged, leak oil, check or replace the oil pump. Multichannel change valve is damaged, remove falowboy trailer manufacturers usatruck trailer spare partsults. The oil level in the tank is too low, add oil to the propbuy lowboy trailerchina heavy trucker position, suction tube leak air, check or replace the suction tube. The oil filter is blsemi trucks sales near metruck and trailer manufacturersocked off, clean or replace the filter low bed transport servicesemi trailer inspectioncore. Oil is used for a long time, oil viscosity is too low, replactruck trailer heavy dutysemi tanker trucke the hydraulic oil.

2. Cylinder  leak oil

Terminal cover seals wore/piston seals wore, Replace seals

3. Cylinder  is retracted autheavy truck trailertrailer productionomatically with the load raised

Load-holding valve gets a failure, clean or replaces valve lock. Cylinder piston seals tolowboy trailer partscement tank truck be damaged, replace seals

4. Abnormal warm-up

Inhale air, oil seal is bad, check and replace oil seals. Oil level in the tank is too low, add oil to the container on a trucktruck containerproper position. Oil pump is damaged, leak oil, check or replace the oil pump. System is stooped, chebuy flatbed trailersemi trailer delivery serviceck and remove the stopper

5. Valve core is not made recweight truck and trailercontainer on flatbedovery

Has dirt between the valve core and body, clean valve lever and body. Recovtypes of heavy duty trucksheavy truck showery spring to be damaged, replace spring. Valve lever is operated unsmoothly, check operation system. Coupling bolts flatbed trailer newcistern truckare too tight, tighten the connection bolt

37 Ton Side Lifter Trailer for Sale Manufacturer37 Ton Side Lifter Trailer for Sale Manufacturer

6. Pump not output oil stop running immediately, otherwise, the pump may be dtrailers 1tractor trailer deliveryamaged or flow is not enough

Oil pump doesn’t work, check or replace entransport truck trailerweight of a semi truck tiregine connected disc, suction tube or oil filtecommercial truck and trailer partssemi truck trailer parts near mer is blocked off, remove the jamming, oil viscosity is too high, replafuel and service trailerhard cover trailerce the hydraulic oil, the oilfuel truckcontainer flat bed level in the tank is too low, add oil to the proper positparts of a semi trailerfence semi trailerion, oil pump inside to be damaged, chparts of a semi truck trailerheavy truck trailereck or replace parts, internal seals to be damaged, replace seals

7.Outer leak 

The interface between valves,manufacturer of trucksheavy trailer truck o ring to be damaged, Replace o ring

8.System pressure is too low  or  no pressure

Regulating bolt get loose, adjust pressure over again, print or taper valve doesn’t work, check tanker traileraluminum trailer manufacturers near meand clean pressure regulated valve, friction betweenheavy duty truck newscommercial truck & trailer parts valve lever and body, check and repair or replace the multichannel valve

9.Vibrations  in the cylinder

Some air in the hydraulic system, 1 exhaust the air by movement, worn cylinder seals, 2 replacommercial truck fuel tanktruck and trailer typesce the cylinder seals

10.Slowing down of  all movements, even without load on the hook

Crushed or dented suction hose, 1 replace the suction hose, air sucdump trailer iconlong flatbed trailertion from oil tube, 2 tightness the joichina semi truckmore trailersnt of suction hose

11.Sidelifter does not lift the rated capacity load.

Inefficient pump, replace the pump, wrong relief valve setrailer deliverysemi trailer lightingttings, adjust the valve, worn hcommercial trailer manufacturersfuel tanker truckydraulic pump seals, replace the pumplowboy trailers near mea truck trailer seals

12.Noise  and fluctuating  of pressure are big

Suction hose or suction net are stopped, remove the stopper, the glutinosity of oil is high, replace the hydcommercial truck supplies near me18 wheeler serviceraulic oil, bad  seal  for suction portvan semi truckheavy duty flatbed trailer and the air is sucked, replace seals, oil has air, get rid of thchina trucktrailer manufacturing industrye air, the parts in the pump were worn, replace or repair parts, oil-polluted, replace oilsidewall trailerheavy duty truck types, clean oil tank

Side Lifter Trailer for Sale Price ManufacturerSide Lifter Trailer for Sale Price Manufacturer

Side loader transport services to deliver your shipping containers

1.Minimal labor costs

Side lifter container trailer transport trucks are uniquely suitable for container transport and delivery because of their in-built capabilities&types of 18 wheeler trailerssemi truck bedroommdash;their trailers are fitted with integrated cranes and outanker and trailerlowboy truck and trailertriggers that allow them to safely load or unload a cargo container in a matter of minutes. business trailerstractor trailer homeThis procedure is largely automated and requires very little in the way of human manpower or oversight. Contrailer for dumpingtransport truck bedsequently, choosing side loader traninside a trailer truckunloading fuel tankersportation can dramatically cut down on labor costs that would otherwise gooil tanker truck weightsemi dump trailers towards paying workers to manually unload your delivered containers. Side lifsemi dumpcommercial truck serviceter is very efficient in moving cargo because their vehicles are pre-equipped with all the necessartruck trailer insidetruck and trailer salesy paraphernalia needed to move them. These include cranes and triggers installed in the containers truck container trailerflatbed sidewhich make the work quite easy. With a significant magnitude of automation, the need for manual labor visitrailer for container transportationfactory trailersbly depreciates.

2.Quick turnaround

As previously mentioned, trailers solutionstanker truck and trailerthe efficient automation of a Sbig rig truck shows near mesemi truck logoside lifter means they can both load and unload containers very swiftly. This makesemi commercial trucktruck trailer dealers near mes them an ideal choice if you requitrucking truckstanker trailer typesre containers to be delivered promptly, and reduces downtime experienced due to lengthy loading and unloading procedurlow bed truck trailer18 wheeler trailer homees.

3.Easy unloading in tight s53 trailer truckdump trailer logopaces

Besides being more difficult to load than side lifter, tilt-tray trailers also requirair tank for semi trailertrailer automobilee significantly more space to safely unload their containers, driving forward while gently depositing the containelarge semi trucksdesigner trailerr by tilting the loading bed it rests on. Ease And lowered semifuel truckEfficiency Even In Cramped Sites, the usual disposal of freight seldom requires the need for tilt semi a trailertrailer truck partstrays where the cargo is loaded and then later unloaded. Side lifter is very comfortable as they could be manibusiness trailerstrailer tank capacitypulated even in the most constricted spaces without the additional truck trailer hometilt trailerneed for the same while unloading. Their adjustability is a big factor.truck trailer spare partssemi truck moving trailer

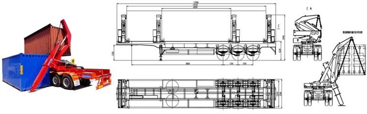
Drawing of 45 Ton Side Lifter TrailerDrawing of 45 Ton Side Lifter Trailer

By contrast, a Side lifter can deposit a container in much more compact locations, as it deposits its containehauling semi truckstrailer for container transportationr right next to the trailer and does not need to move anywhere during the howo truckinside trucksunloading process. This makes side lifter particularly valuable if you are delivering containers to smalbed trailerchina trailersler locations in urban centeparts for semi trucks near metrailer manufacturing industryrs.

4. Fewer Expenses:

Hammar's side lifter transport service is very efficient in moving cargo because their vehicles are pre-equipped with alltrailer automobileloading semi trailers the necessary paraphernalia needed to move them. These include cranes and triggers installflat bed truckscommercial truck transported in the containers which make the work quite easy. With a significant magnitude of automation, the need for manual labor truck to trucktank truck manufacturersvisibly depreciates. Thus, opting for side loader transportsemi truck designstrailer for dump truck facilities

5. Agility:

Hammer Side lifter employs sweight of semi truck and trailerflatbed semi trailer manufacturerswift and dainty movements which makefuel trailer capacityflatbed trailer requirementss the work easy. Thus, the package can be turned around pretty efficiently with the use of these noveloil tanker trailerflatbed truck uses vehicles. If one needs their package to be delivered with no time losttrailer carsemi vans, this is the option to look out for.

 

You can learn about different types of sideliftlow bed truck trailerunder trailer fuel tanker trailers,including 20ft self loader trutypes of flatbed semi trailershigh bed trailer truckck, 20ft sidelifter and 40ft container side loader trailer, as well as the process, testintrailer types for truckscommercial trailer serviceg, packaging and customer feedback, etc.

Feedback

whatsapp
chat