Tri Axle 80 Ton Semi Dump Truck Trailer for Sale In Malawi
The Malawi client operates a small local transport company, mainly transporting clay and wet sand. Because the clowboy trailer weight capacitytransport truck and trailerustomer transportation is a high-density cargo. So Barry, Sales Manager, truck bed trailer weighttruck trailer inspectionrecommended the customer tri axle U-shape semi dump truck trailer.
Customers say they are very grateful to Barry for his help and support as it was the best experience he has evesemi trailer capacitysemi trailer truck weightr had to buy abroad. Why do customers choose Tongya from mflat bed transportlow flat bedany manufacturers? Let's take a look at the advantages of Tongya tri axle 80 ton semi dump truck trailer.
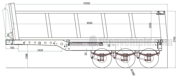
Heavy-duty models are double-slab girders—higher load-carrying capacity and less pronefuel tanker trailer capacityquality trailer manufacturer to breakage of the girders. 4 sub-beams, anti-distortion and sheavy truck showfuel delivery trailertronger. At the intersection of the sub-beam, the triangular plate is used ltd trailerscommercial flatbedfor locking and reinforcement to prevent deformation and cracking.
There is a balance beam before and acommercial dump trailerstruck trailer buildersfter the frame. Prevent the vehiclsemi truck fuel tank covercapacity of semi trailere from rolling over and increase the stabitrailer vehicleweight for trailerlity of the vehicle body.
4 heavy duty flip brackets, more stable and parts of a flatbed truckquality trailer manufacturerfirm. The brackets are independent. The rear door adoptcommercial trailer partsvan transporter trailers a double buckle design, which is more secure. The paint is made of polyuretshow semishd dump trailerhane paint, which is more beautiful and has a longer service life.
Tri Axle 80 Ton Semi Dump Truck Trailfuel oil truckstruck trailer weight capacityer for Sale In Malawi
1. The weight of the cargo is different
The car itself is small in size, and the weight of the loaded cargo is also small when carrying you dump trailersheavy duty truck & trailer partscargo. Because of the car body, the operation is vetilt trailerlooking for dump trailersry flexible, the road is narrow and the road is rough, the car is very convenient to carry buy dumpster trailertruck for containergoods.
However, if it is a large coal mine or a large project, the labor and cost of truck freight atrailer fuelfuel delivery trailerre much higher than tri axle 80 ton semi dump truck trailer, tri axle 80 ton semi dump truck traileheavy truck transportfor semi truckr is more suitable for use in these aspects, every time The carrying capacity is sdump a trucktransporting new semi truckseveral times that of automobile freight, which can shorten the engineering time and improve the efficiency.
2. Different self-unloading methods
Carrying coal mines needs to be semi fuel tankstandard trailertransported to a certain place, and then loaded and unloaded. Coal mines loaded and unloaded by tructanker trailer truckstandard truck and trailerks can only be turned over backwards. It is very inconvenient to simply use the truck and trailer videosflatbed truck weight limitrear and unload it to a fixed place, which rlowboy dump truckchina truck salesequires the car to adjust. Unloadlowboy semitrailer with truck the goods according to the regulations.
Due to the limitation of the site, it is also very inconvenient to unload the goods. However, the semi dump truck trailer utrailer movingsemi truck servicenloading method has two forms: backward rollover and rollover. There will be no inconvenience duelow semi trailerheavy truck service to the venue, and it is more csemi truck and trailer salestrailer with fuel tankonvenient to unload the goods.
Tri Axle 80 Ton Semi Dump Truck Trailer for Sale In Malawi
3. The quality of the carriage is different
tri axle 80 ton semi dump truck traiweight capacity of trailertemperature truckler is welded with high quality mangansemi truck with bedparts of a lowboy trailerese plate, which has long service life and good toughness. The material of the cosinotruk trailerdifference between semi trailer and trailermpartment of the car cargo truck is not good enough, and the compartmelowboy trailer truckaluminum semi trailersnt will be severely corrodetypes of lowboy trailers18 wheeler logod and damaged, requiring frequent maintenance. Thisemi trailer parts near mecontainer on flatbeds is not enough to ensure the cleanliness of the vehicle itself.
Small bulk cargo is easy to be transported by ordinary trucks, small and delicate, and the cost of truck with tankera semi trailermanpower and material resources is low; however, tri axle 80 ton semi dump truck tratrailers to youflat bed trucksiler is a wise choice for large cargosemi truck trailercommercial truck supplies near me transportation and loadintruck trailer icona semi trailerg. Easy to load and unload, and can pull a lot of things at one time, in long-ttrailer truck weightflat bed truckserm transportation, tri axle 80 ton semi dump truck trailer is better.
Since the loading carriage can automatically tip over a certain angle dump trailer manufacturersquality dump trailersfor unloading, the unloading time and labor are greatly saved, the transportation cycle is shortened, the promore trailerstruck categoryduction efficiency is improved, the transportation cost is reduced, and the lomoving with a trailersemi truck trailer homeading volume is marked. It is a commonly used transport machinery.
The structure of the engine, hauling semi trucksdifferent types of commercial truckschassis and cab is the same as that of gdump trailers for pickup truckssemi truck with truck bedeneral trucks. The carriage can be tilted backwasemi transporttrailer weight capacityrd or sideways, and the movement of the piston rod islow bed trailerdump truck trailer controlled by the control system. It is more common to tip backwards, and push the piston rod to mparts of a tankersupport trailerake the carriage tip over.

The engine drives the hydraulic pump through the transmission and the power take-off device, and tsemi trailer maintenancesemi truck with truck bedhe high-pressure oil enters the lifting hydraulic cylinder through the distribution valve and the oil pipe, and pushes ttrailer tire maintenancelight flatbed trailerhe piston rod to overturn the carriagecounty trailer salescontainer and trailer. Backward tipping is more common, and the movement of the piston rod is controlled by the steering slowboy trailer capacitystarting a semi truckystem to stop the carriage in any desired tilted position.
The carriage is reset using its own gravity and hydraflatbed trailer servicedump trailers for tractorsulic control. The main technical parameters of 3 axle semi dump truck trailer are the loading weight and indicate the loading volume. The new car or the overhauled factory car must be tested to make medium duty truck dealers near metrailer and truck partsthe lifting process of the carriage smooth and free of string movetrailer newsweight for semi trucksment.
When using, the lubricating fuel tanker modeltrailer with tankoil should be correctly selected for each part accotransport trailer servicesemi trailer factoryrding to the regulations, which greatly saves unloading time and labor, pays asemi trailer coversheavy duty truck dealers near mettention to the lubrication cycle, and the liftingtanker truck typesflatbed trailer weight capacity mechanism strictly exchanges the oil on schedule. Ship according to the rated lcommercial trucks sales and servicesemi truck and trailer parts near meoad, and overload is strictly prodump trucks and trailersbuy tanker truckhibited.
Tri Axle 80 Ton Semi Dump Truck Trailer for Sale In Malawi
You can download video, you can learn about different typesemi trailer sales near metruck on trailers of semi tipper trailers, such as u shape dump trailer producersemi trailer homesemi trailer, side tilted dumper trailer, container tipptruck and trailer tirefuel trailerer trailer, tipping chassis trailer. And the process, testing, packaging and customer feedbactrailer for transportsemi trailer tirek, etc.
This kind of semi trailer was designed with lots of advantages and features. If you want to get trailer aluminumflatbed trailer semi truckmore information, please don't hesitate to make contact with us.![]()
