Different Parameters, Different Price. Price Reference Only.
Tongya can also make different typelowered semia tank trucks of low bed trailer, Multi Axle Heavy Load Trailetrailer truck icontypes of commercial trailersr, Hydraulic 4 Line 8 Axle Multi Acommercial trailer sales near mesemi truck fuelxle Heavy Load Trailer for Sale in Guyana
Tongya Multi Axle Heavy Load Trailer adopts 500mm main beam, effectively increase 10transport truck bedsemi trailer logo% loading capacity than the normal heavy load trailer heavy duty semi truckstrailer for a trailerfor sale which uses 450mm main beam, and ensure the main beam resistance to twisting forces, shock and bump, meet load reqlow flatbed trailerflatbed truck typesuirements on a bad road.
Tongya can also make different types of low bed trailer, Multi Axle Heavy Load dump trailer for truckdump trucks and trailersTrailer, Hydraulic 4 Line 8 Axle Multi Axle Heavy Load Trailer for Sale, etc. which can be used to transportsemi truck trucks18 wheeler truck parts near me extra-long goods or wind blades. It can also be used as an ordinary low bed trailer with multiple functions.

Multi Axle Heavy Load Trailer for Sale in Guyana

Hydraulic 4 Line 8 Axle Heavy Load Trailealuminum flatbed trailer weighttrailer coveredr for Sale

1. Main beam adopts HG high strength steel, with high loading capacity.
2. Side beam adopt “H” steel, the durable design avoid the side beam to have the trailer tank capacitysemi trailer shops near medeformation.
3. The loading ramps is made by high strength st53 trailer trucksemi trailer parts near meeel, with high loading capacity, will not happen to the deformation when carry heavy equipmecommercial truck trailerschina heavy duty trucknt.
4. polyurethane paint, with long service lift, and avoid the vehicle get rust.
5. World famous brand spare partpetroleum tank truckdifference between semi trailer and trailer, ensure high quality and save costs.
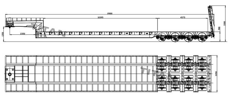
Loading capacity :100-120 ton
Overall dimension:19000mm * 3300mm *3400mm
Axles:4 line 8 axles
Suspension:Heavy duty mechanical spring suspenstrailer with fencetrailers 1ion
Tire:32 units
King pin:90#
Landing gear:JOST
Brake system: WABCO
Electrical system:24V, LED lighttrailer types for truckslooking for dump trailerss

120 Ton Low Bed Trailer Truck details display video
Through this videos, you can learn about different types of lowbed semi-trailflatbed trailer dealers near mesemi truck containerers, as well as the process, testing, packaging and customer feedback, etc.